missoni baia 5203
MIAMIMISSONI BAIA 5203
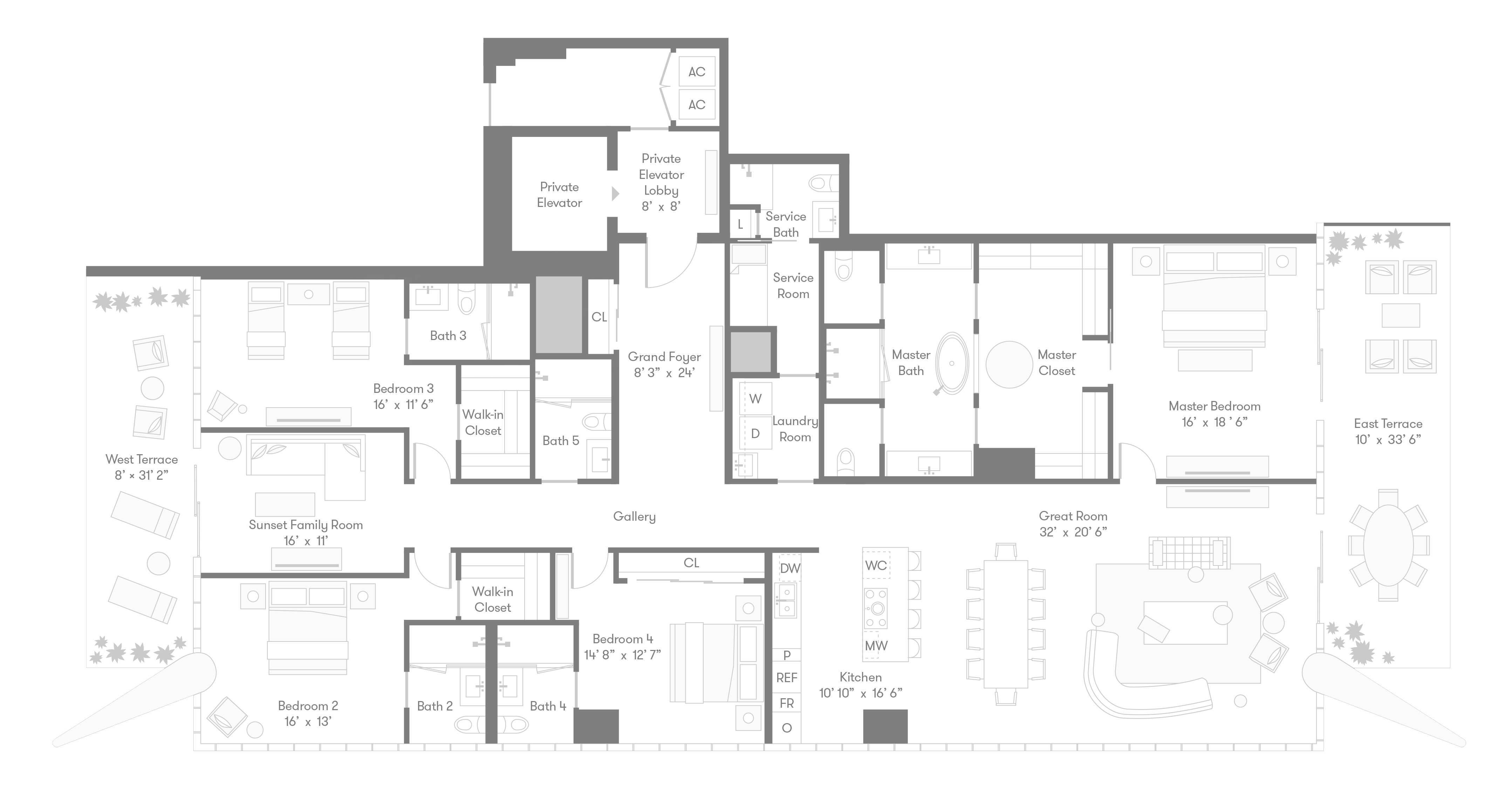
MIAMIresidence details
price
$4,750,000
BEDROOMS
4

BATHROOMS
6

INTERIOR SF
3,796
Four floors below the penthouse with 270-degree ocean, bay and city views, this spacious residence has it all. Four beds, six baths, a den, a dedicated staff room and two deep terraces. The open flow-through floor plan, marble floors, and 10’ floor-to-ceiling windows create a bright, spacious living area. 10′ deep terraces make it easy to enjoy the jaw dropping views. The kitchen features top-of-the-line WOLF & Sub-Zero appliances, and European custom-designed Italkraft cabinetry. Boasting private elevator access, two reserved parking spaces, world-class amenities, and only five minutes away from the Design District, Miami Beach, Downtown, and Brickell, Missoni is Miami’s newest move-in-ready new development.
VIRTUAL TOUR
Video
AMENITIES
On floors 5 though 7, amenities include a bayfront lounge with a pool overlooking the water; a media room; a beauty salon; a children’s playroom; a pet spa; an expansive gym overlooking the bay; and one of Miami’s largest, resident-only spas. An outdoor bridge connects the sixth floor’s indoor amenities suite to the flow-through pool deck, which includes cabanas, an Olympic-sized lap pool, plunge pools, children’s water features, and an elevated tennis court.